Sản phẩm mới của Viglacera được sản xuất tại nhà máy sứ Viglacera Bình Dương với hơn 20 năm kinh nghiệm ngành sản xuất thiết bị vệ sinh. Được thiết kế độc quyền từ Phòng nghiên cứu phát triển sản phẩm (R&D), bàn cầu có thiết kế nguyên khối công thái học, vành Rimless trơn láng – tránh đọng nước, men Ag+ Ceramic kháng khuẩn. Sản phẩm đạt tiêu chuẩn ASME Hoa Kỳ.
![]()
Bàn cầu một khối V819 - Thiết kế nguyên khối, đường nét tinh tế
1.Thiết kế không vành Rimless
Bồn cầu một khối V819 thiết kế vành trơn láng không góc khuất, không chứa nước, không vết ghép vành, giúp ngăn ngừa vi khuẩn sinh sôi, hạn chế mùi hôi và giúp người dùng dễ dàng vệ sinh lau chùi.
![]()
Thiết kế không vành Rimless
2. Men Nano Titan Ag+ Ceramic kháng khuẩn, tự làm sạch hiệu quả
Toàn bộ phần sứ của bàn cầu một khối V819 được tráng men Nano Titan Ag+ Ceramic - công nghệ men độc quyền của Viglacera. Đây là lớp men chứa tác nhân kháng khuẩn ion bạc Ag+ Ceramic, có công dụng kháng đến 89% vi khuẩn, được kiểm nghiệm bởi Viện Pasteur thành phố Hồ Chí Minh.
Lớp men được thủy tinh hóa, gắn chặt lên bề mặt sản phẩm, có khả năng chống thấm, chống bám dính, tự làm sạch hiệu quả. Giữ cho sản phẩm luôn sáng bóng, bền lâu trong suốt thời gian sử dụng.
![]()
Công nghệ men Nano Titan Ag+ Ceramic kháng khuẩn độc quyền của Viglacera
3. Thiết kế nguyên khối, kích thước nhỏ gọn
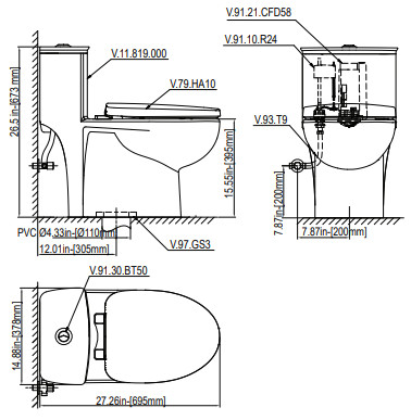
Bàn cầu một khối V819 có kích thước nhỏ gọn chỉ D695 * R378 * C673, phù hợp cho mọi diện tích và yêu cầu sử dụng.
Đặc biệt, thiết kế liền khối, đường nét thiết kế tối giản giúp hạn chế tối đa việc bám đọng vi khuẩn, bụi bẩn hay các vết ố vàng ở các thành, vách,... Giúp người dùng dễ dàng vệ sinh, giảm thiểu thời gian và công sức lau chùi bồn cầu.
Thông tin chi tiết về bàn cầu V819


Đại lý chính hãng thương hiệu Viglacera, PLATINUM, SANFI Lộc Nghi Cần Thơ
Website đang trong quá trình thay đổi giá.
Vui lòng liên hệ Showroom hoặc 0799.69.88.86 để nhận báo giá tốt nhất.