Danh mục trống
| Kiểu xả | Xả 2 nhấn 4.8/3 Lít |
| Hệ thống xả | Hệ thống xả Siphon mạnh mẽ |
| Men sứ chống bám bẩn | Men sứ chống dính, chống bám bẩn CEFIONTEC |
| Vòi xịt | Không bao gồm |
| T cầu | Có |
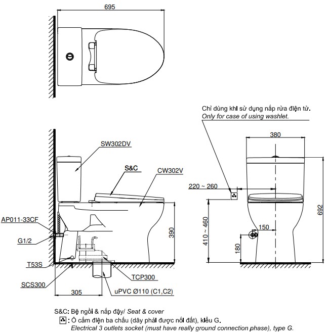
| Kích thước | L695 x W380 x H692 (mm) |
| Tâm xả | 305mm |
| Đường kính ống thoát | 53mm |
| Áp lực nước dử dụng | 0.05-0.75 Mpa |
| Phụ kiện kèm theo | Phụ kiện lắp đặt, không bao gồm bích nối sàn, van dừng |
| Bảo hành | Nhấp để xem chính sách bảo hành |
Bồn cầu hai khối TOTO CS302DW16#W nắp rửa C2 - TCF23410AAA. Thiết kế hai khối với đường nét tinh giản, cùng màu trắng thanh lịch mang lại vẻ hiện đại cho không gian.
Sản phẩm đến từ thương hiệu thiết bị vệ sinh cao cấp TOTO Nhật Bản
• Thiết kế thân bán kín, thân dài
• Hệ thống xả xoáy Siphon siêu mạnh, tiết kiệm nước
• Công nghệ nước điện phân khử khuẩn Ewater+ (vệ sinh vòi rửa)
• Vòi rửa massage đa chức năng, rửa sạch, êm ái
• Tự vệ sinh vòi rửa trước và sau khi sử dụng
• Sấy khô, khử mùi, sưởi ấm bệ ngồi
1. Mô tả chi tiết Bàn cầu hai khối CS302DW16 kèm nắp rửa điện tử WASHLET dòng C2 TCF23410AAA
Bàn cầu hai khối CS302 sở hữu thiết kế tinh gọn và hiện đại, được kết hợp thêm chiếc nắp rửa điện tử WASHLET dòng C2 TCF23410AAA giúp việc vệ sinh tiện lợi hơn, từ đó giúp người dùng cảm thấy thoải mái khi trải nghiệm.
Bên cạnh đó, chức năng xả siphon vô cùng mạnh mẽ sẽ giúp đánh bay mọi vết bẩn, mang lại cảm giác sạch sẽ, dễ chịu khi sử dụng.
2. Tính năng công nghệ Bàn cầu hai khối CS302DW16 kèm nắp rửa điện tử WASHLET dòng C2 TCF23410AAA
Nhờ tích hợp các công nghệ hiện đại của nắp rửa điện tử WASHLET dòng C2 TCF23410AAA mà giờ đây người dùng có thể trải nghiệm nhiều tính năng mới giúp việc vệ sinh trở nên nhanh chóng và sạch sẽ hơn. Dưới đây là một số tính năng hữu ích của chiếc bàn cầu hai khối CS302DW16:

