| Kiểu xả | Xả gạt 4.5/3 Lít |
| Hệ thống xả | Hệ thống xả xoáy Tornado siêu mạnh, siêu êm, tiết kiệm nước |
| Men sứ chống bám bẩn | Men sứ chống dính, chống bám bẩn CEFIONTEC |
| Vòi xịt | Không bao gồm |
| T cầu | Có |
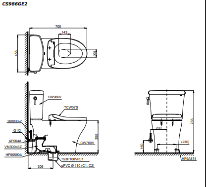
| Kích thước | 700D x 456W x 765H mm |
| Tâm xả | 305mm |
| Đường kính ống thoát | 63mm |
| Áp lực nước dử dụng | 0.05-0.70 Mpa |
| Phụ kiện kèm theo | Phụ kiện lắp đặt, không bao gồm bích nối sàn, van dừng |
| Màu bảng điều khiển | Vàng Pháp |
| Bảo hành | Nhấp để xem chính sách bảo hành |
Bồn cầu 2 khối TOTO CS986GE2 nắp rửa TCW07S. Thiết kế hai khối với đường nét tinh giản, cùng màu trắng thanh lịch mang lại vẻ hiện đại cho không gian.
Sản phẩm đến từ thương hiệu thiết bị vệ sinh cao cấp TOTO Nhật Bản
1. Mô tả chi tiết bàn cầu hai khối, nắp đóng êm kèm vòi rửa nước lạnh TCW07S CS986GE2
Bàn cầu hai khối, nắp đóng êm kèm vòi rửa nước lạnh TCW07S CS986GE2 mang đến vẻ trang nhã và hiện đại với màu trắng thanh lịch. Với kích thước 700D x 456W x 765H (mm) và thiết kế thân dài kín tinh tế, sản phẩm có thể phù hợp với nhiều không gian phòng tắm khác nhau.
Sản phẩm CS986GE2 nổi bật với lớp men sứ chống dính CEFIONTECT, đảm bảo bề mặt luôn sáng bóng. Hệ thống xả xoáy TORNADO siêu mạnh tiết kiệm nước với chỉ 4.5L/3L. Tích hợp vòi rửa nước lạnh và chức năng rửa sau cũng giúp tăng cường thoải mái và sự dễ chịu cho người sử dụng.
2. Tính năng công nghệ bàn cầu hai khối, nắp đóng êm kèm vòi rửa nước lạnh TCW07S CS986GE2
Bàn cầu CS986GE2 sở hữu nhiều ưu điểm vượt trội về công nghệ, bao gồm các tính năng nổi bật sau:
2.1 Tráng men CEFIONTECT chống bám bẩn độc quyền
Bàn cầu CS986GE2 được tráng lớp men sứ CEFIONTECT chống bám bẩn độc quyền, tạo bề mặt mịn màng và không cho chất thải bám vào. CEFIONTECT không chỉ mang lại độ sáng bóng và sạch sẽ lâu bền, mà còn giúp ngăn chặn tình trạng ố vàng xuất hiện, đảm bảo vệ sinh và an toàn cho sức khỏe người dùng.
Bề mặt bàn cầu bình thường mặc dù trông rất mịn màng, nhưng những khoảng trống nhỏ giữa chúng vẫn là nơi lý tưởng cho nấm mốc, chất thải và vi khuẩn phát triển, có thể gây hại cho sức khỏe người dùng.
Nhờ công nghệ men CEFIONTECT độc quyền, các khoảng trống trên bề mặt bàn cầu trở nên siêu nhỏ, chỉ bằng khoảng một phần triệu milimet – nhỏ hơn đáng kể so với kích thước của chất thải. Điều này hỗ trợ ngăn chặn tình trạng ố vàng xuất hiện trên mặt bàn cầu, giữ cho bề mặt luôn sáng bóng và dễ dàng làm sạch.
2.2 Hệ thống xả xoáy TORNADO 360 độ siêu êm, siêu mạnh, tiết kiệm nước
Hệ thống xả xoáy TORNADO hoạt động bằng cách xả nước từ phía trước, sau đó nước xoáy đều trong lòng bàn cầu với áp lực mạnh, giữ ổn định để vệ sinh mọi khu vực và rửa sạch toàn bộ lòng cầu. Điều này đảm bảo loại bỏ hiệu quả vết bẩn và đảm bảo vệ sinh sạch sẽ.
Dòng nước xả xoáy TORNADO 360 độ siêu mạnh không chỉ làm sạch bề mặt bàn cầu hiệu quả mà còn giảm tiếng ồn và sử dụng ít nước, đồng thời đóng góp vào việc tiết kiệm lượng nước đáng kể.
2.3 Xả tiết kiệm nước với công nghệ WATER SAVING 4.5/3L
Bàn cầu CS986GE2 của TOTO thực sự là một lựa chọn thông minh và tiết kiệm tài nguyên nước. Sản phẩm đảm bảo rằng mỗi lần sử dụng sẽ tiêu tốn không quá 4.5L nước.
2.4 Thiết kế vành kín RIMLESS
Sản phẩm CS986GE2 có thiết kế không vành độc đáo, không có bất kỳ khoảng trống nào, từ đó loại bỏ chỗ cho vi khuẩn và chất thải bám vào. Thiết kế vành kín này cũng hỗ trợ làm cho quá trình lau chùi vệ sinh bàn cầu trở nên đơn giản và nhẹ nhàng hơn rất nhiều.
3. Thông số kỹ thuật của bàn cầu hai khối, nắp đóng êm kèm vòi rửa nước lạnh TCW07S CS986GE2
Chi tiết thông số kỹ thuật của bàn cầu hai khối nắp đóng êm kèm vòi rửa nước lạnh TCW07S CS986GE2:
