| Lắp đặt | Treo tường |
| Kiểu xả | Kiểu xả tay gạt 8.0L |
| Hệ thống xả | Hệ thống xả thẳng thoát ngang |
| Nắp đóng êm | Nắp đóng êm |
| Men sứ chống bám bẩn | Công nghệ men sứ Aqua Ceramic |
| Vòi xịt | Không bao gồm |
| T cầu | N/A |
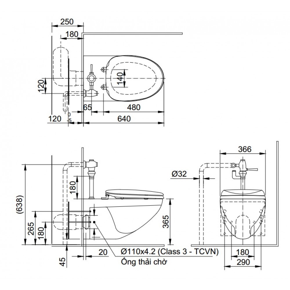
| Kích thước | 366 x 640 x 320 (mm) |
| Phụ kiện kèm theo | Đã bao gồm bộ xả gạt |
| Bảo hành | Nhấp để xem chính sách bảo hành |
Bồn cầu INAX AC-22P được thiết kế kiểu treo tường với két nước âm, tạo nên cảm giác gọn gàng, sang trọng và tiết kiệm diện tích tối đa. Thiết kế này đặc biệt phù hợp với các công trình cao cấp như khách sạn, biệt thự, căn hộ thông minh hoặc nhà vệ sinh nhỏ cần tối ưu hóa không gian.
Sản phẩm sử dụng kiểu xả tay gạt với một mức xả 8.0L, đảm bảo khả năng cuốn trôi chất thải hiệu quả mà không tốn nước hơn mức cần thiết. Tay gạt bằng vật liệu chắc chắn, dễ thao tác và gần như không xảy ra lỗi vặt trong quá trình sử dụng lâu dài.
Công nghệ Aqua Ceramic độc quyền từ INAX Nhật Bản giúp giữ cho bề mặt sứ luôn:
Trắng sáng như mới
Không bị bám cặn, ố vàng
Ngăn vi khuẩn và dễ lau chùi hơn hẳn các loại men thường
Điều này không chỉ tăng độ bền của sản phẩm mà còn giảm đáng kể công sức vệ sinh định kỳ.
| Kích thước tổng thể | 640mm (Dài) x 366mm (Rộng) x 320mm (Cao) |
|---|---|
| Màu sắc sản phẩm | Trắng thanh lịch, phù hợp mọi không gian |
| Lắp đặt | Treo tường, két âm, tiết kiệm diện tích |
Nắp rửa CW-H20VN đi kèm mang đến trải nghiệm vệ sinh cao cấp, tích hợp nhiều chức năng thông minh như:
Vòi phun rửa trước – sau riêng biệt
Massage thư giãn với tia nước
Sưởi ấm bệ ngồi và nước rửa, phù hợp mùa lạnh
Khử mùi hôi tự động ngay sau khi sử dụng
Chức năng sấy khô bằng khí ấm, điều chỉnh được nhiệt độ
Đóng nắp êm không gây tiếng động
Tiết kiệm điện với chế độ tiết kiệm năng lượng
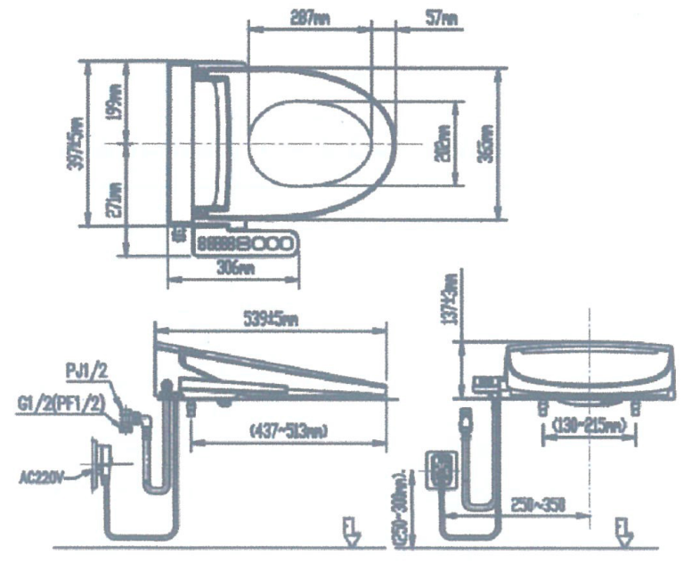
| Thông số | Kích thước (mm) |
|---|---|
| Chiều rộng (Width) | 539 |
| Chiều sâu (Depth) | 137 |
| Chiều cao (Height) | 469 |
| Vật liệu | Nhựa kháng khuẩn KILAMIC (chứng nhận SIAA) |
| Nguồn điện | Sử dụng điện dân dụng (220V) |
✅ Thiết kế treo tường tối ưu hóa không gian
✅ Xả tay gạt bền, mạnh, ít hư hỏng
✅ Công nghệ Aqua Ceramic giữ sạch bề mặt
✅ Nắp rửa tiện nghi, thông minh đúng chuẩn Nhật
✅ Dễ bảo trì, dễ sử dụng và cực kỳ tiết kiệm
1. Bồn cầu AC-22P có thể dùng nắp rửa khác không?
Có, nhưng CW-H20VN là lựa chọn hoàn hảo về kích thước và công năng tương thích.
2. Nếu mất điện thì nắp rửa hoạt động không?
Không, nhưng bồn cầu vẫn có thể xả bình thường nhờ cơ chế tay gạt.
3. Lắp đặt có phức tạp không?
Không. INAX có hướng dẫn chi tiết và thợ chuyên lắp đặt, chỉ cần chuẩn bị sẵn nguồn điện và ống cấp nước.
4. Sản phẩm có bảo hành không?
Có. Bồn cầu sứ bảo hành 10 năm. Nắp điện tử bảo hành 2 năm chính hãng INAX.
5. Sử dụng có an toàn không?
Rất an toàn. Nắp rửa dùng vật liệu kháng khuẩn KILAMIC được chứng nhận bởi SIAA Nhật Bản.
INAX AC-22P kết hợp nắp rửa CW-H20VN là lựa chọn lý tưởng cho người dùng yêu thích sự sạch sẽ, tiện nghi và công nghệ Nhật Bản. Với kiểu xả tay gạt mạnh mẽ, thiết kế treo tường hiện đại và nắp rửa thông minh đa tính năng, đây là combo không thể bỏ qua cho mọi công trình chất lượng cao.




Lộc nghi vinh dự đón nhận chứng nhận Đại lý bán hàng xuất sắc thương hiệu thiết bị vệ sinh INAX
Website đang trong quá trình thay đổi giá.
Vui lòng đến Showroom hoặc liên hệ 0799.69.88.86
để nhận báo giá tốt nhất.