Danh mục trống
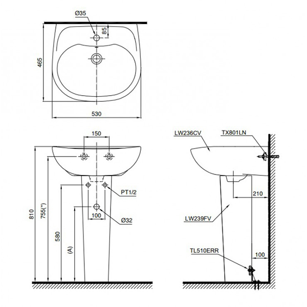
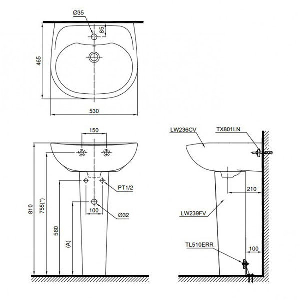
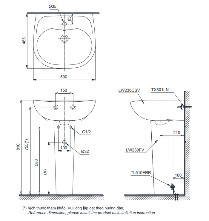
| Loại lavabo | Lavabo treo tường |
| Thoát tràn | Có |
| Men sứ chống bám bẩn | Không |
| Sử dụng cùng vòi lavabo | Vòi lavabo thấp |
| Phụ kiện kèm theo | Phụ kiện lắp đặt lavabo |
| Vòi lavabo | Không bao gồm |
| Bộ xả | Không bao gồm |
| Kích thước | L465 x W530 x H810 (mm) |
| Bảo hành | Nhấp để xem chính sách bảo hành |
Lavabo treo tường được bắt vít thẳng vào tường cho nên rất nhỏ gọn và tiết kiệm không gian cho phòng tắm. Đặc biệt phù hợp với những phòng tắm có diện tích nhỏ.
Lavabo chậu rửa mặt tăng thêm tính thẩm mỹ cho không gian phòng tắm, nhờ phần chân lửng hoặc chân dài che bớt đi phần ống nước.
Chất liệu sứ cao cấp, chống bám bẩn
Giá cả phù hợp túi tiền
Sản phẩm đến từ thương hiệu thiết bị vệ sinh cao cấp TOTO Nhật Bản
MEN CHỐNG BÁM BẨN CEFIONTECT
Lớp men sứ mịn màng ngăn chất thải bám vào
CEFIONTECT là lớp men sứ mịn màng được tráng trên toàn bộ bề mặt bàn cầu. Lớp men tráng vô cùng mịn màng này khiến cho chất thải không thể bám vào bề mặt bàn cầu. Với độ bền cao, CEFIONTECT đại diện cho vẻ đẹp bền bỉ và sạch sẽ.

Loại bỏ các khoảng trống siêu nhỏ - nơi chất thải thường bám vào
Lớp men thông thường có thể trông mịn màng khi nhìn bằng mắt, nhưng chúng có những khoảng trống mà chất thải, nấm mốc và vi khuẩn có thể ẩn náu. Chỉ với một phần triệu milimet, các khoảng trống trên bề mặt của CEFIONTECT nhỏ hơn nhiều so với kích thước chất thải.
Lớp men CEFIONTECT có tính ưa nước
Hydrophilic là từ dùng để miêu tả các vật liệu mang tính ưa nước. CEFIONTECT là hydrophilic, do đó nước sẽ làm đều trên bề mặt bàn cầu, khiến chất thải dễ dàng bị rửa trôi hơn.

