Danh mục trống
| Loại lavabo | Lavabo đặt bàn |
| Thoát tràn | Có |
| Men sứ chống bám bẩn | Công nghệ CeFIONtect giúp bề mặt chậu siêu nhẵn, hạn chế tối đa các vết bẩn, vi khuẩn |
| Sử dụng cùng vòi lavabo | Vòi lavabo thấp |
| Phụ kiện kèm theo | Phụ kiện lắp đặt lavabo |
| Vòi lavabo | Không bao gồm |
| Bộ xả | Không |
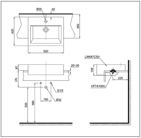
| Kích thước | L420 x W520 x H159 (mm) |
| Bảo hành | Nhấp để xem chính sách bảo hành |
Chậu bán âm bàn hay còn gọi là chậu rửa mặt bán âm bàn là loại chậu rửa mặt được thiết kế có một phần nổi trên mặt bàn đá, trong khi phần còn lại nằm âm phía dưới bàn. Kiểu thiết kế này giúp chậu rửa mặt không quá cao hoặc không quá choán diện tích ra phía trước, trong khi lòng chậu vẫn sâu và chứa được nhiều nước, giúp tiết kiệm không gian nhưng vẫn đảm bảo tính năng sử dụng.
Sản phẩm đến từ thương hiệu thiết bị vệ sinh cao cấp TOTO Nhật Bản
Men sứ chống dính, chống bám bẩn CEFIONTECT
Lớp men sứ mịn màng ngăn chất thải bám vào
CEFIONTECT là lớp men sứ mịn màng được tráng trên toàn bộ bề mặt bàn cầu. Lớp men tráng vô cùng mịn màng này khiến cho chất thải không thể bám vào bề mặt bàn cầu. Với độ bền cao, CEFIONTECT đại diện cho vẻ đẹp bền bỉ và sạch sẽ.

Loại bỏ các khoảng trống siêu nhỏ - nơi chất thải thường bám vào
Lớp men thông thường có thể trông mịn màng khi nhìn bằng mắt, nhưng chúng có những khoảng trống mà chất thải, nấm mốc và vi khuẩn có thể ẩn náu. Chỉ với một phần triệu milimet, các khoảng trống trên bề mặt của CEFIONTECT nhỏ hơn nhiều so với kích thước chất thải.
Hydrophilic là từ dùng để miêu tả các vật liệu mang tính ưa nước. CEFIONTECT là hydrophilic, do đó nước sẽ làm đều trên bề mặt bàn cầu, khiến chất thải dễ dàng bị rửa trôi hơn.

