Danh mục trống
| Loại lavabo | Lavabo âm bàn |
| Thoát tràn | Có |
| Men sứ chống bám bẩn | Công nghệ CeFIONtect giúp bề mặt chậu siêu nhẵn, hạn chế tối đa các vết bẩn, vi khuẩn |
| Sử dụng cùng vòi lavabo | Vòi lavabo thấp |
| Phụ kiện kèm theo | Không đóng kèm cùng sản phẩm |
| Vòi lavabo | Không bao gồm |
| Bộ xả | Không bao gồm |
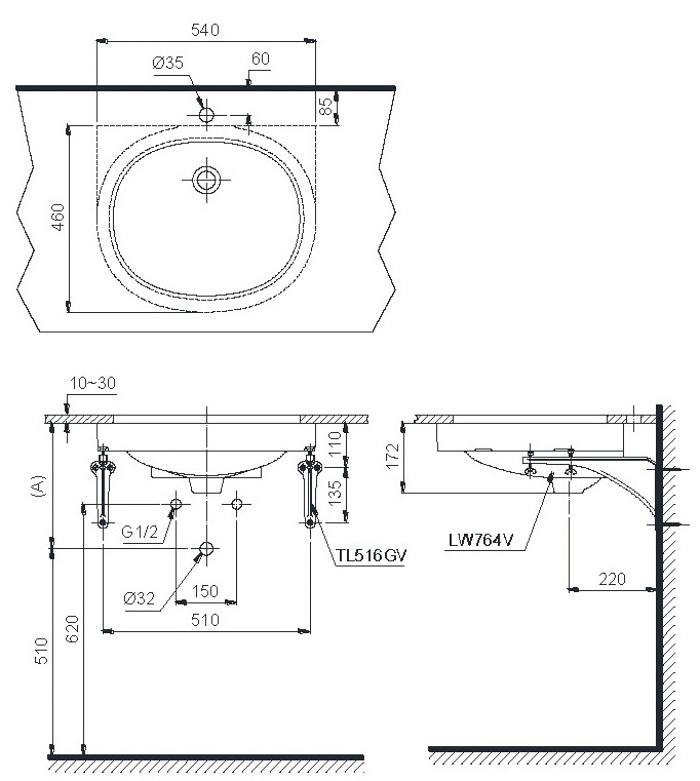
| Kích thước | L460 x W540 x H172 (mm) |
| Bảo hành | Nhấp để xem chính sách bảo hành |
Lavabo chậu rửa mặt TOTO LT764#XW là mẫu chậu âm bàn hiện đại với thiết kế tối giản, tiện dụng và dễ kết hợp với nhiều phong cách nội thất phòng tắm. Chậu được hoàn thiện bằng sứ vệ sinh cao cấp, phủ lớp men CEFIONTECT chống bám bẩn, giúp duy trì vẻ ngoài sáng bóng và sạch sẽ. Sản phẩm có tích hợp lỗ thoát tràn và tương thích với nhiều loại vòi chậu, là lựa chọn lý tưởng cho mọi gia đình.
Thiết kế âm bàn tiện dụng: Giúp tiết kiệm diện tích và tăng tính thẩm mỹ cho không gian phòng tắm.
Men sứ CEFIONTECT cao cấp: Lớp men siêu mịn giúp hạn chế tối đa vi khuẩn và bụi bẩn bám vào bề mặt chậu, dễ dàng vệ sinh.
Tích hợp lỗ thoát tràn: Đảm bảo an toàn và tiện lợi khi sử dụng.
Phù hợp với nhiều loại vòi: Có thể kết hợp với các mẫu vòi phổ biến của TOTO như TS222A, TS240A, TS205A, DL345A… và nhiều mẫu vòi chậu khác trên thị trường.
Mã sản phẩm: LT764#XW
Kích thước: L460 x W540 x H172 mm
Chất liệu: Sứ vệ sinh cao cấp
Màu sắc: Trắng
Loại chậu: Âm bàn
Men sứ: CEFIONTECT chống bám bẩn
Lỗ thoát tràn: Có
Kích thước lỗ bắt vòi: Ø35 mm
Lỗ bắt vòi: Trên bàn
Thiết kế âm bàn đơn giản, dễ phối hợp nội thất
Chất liệu sứ bền bỉ, chống trầy xước
Men CEFIONTECT hạn chế bám bẩn, dễ vệ sinh
Lỗ thoát tràn tiện dụng, chống tràn hiệu quả
Tương thích với nhiều loại vòi và phụ kiện phổ biến
Chậu có dễ vệ sinh không?
Có. Nhờ men sứ CEFIONTECT, việc lau chùi chậu rất dễ dàng và không cần dùng hóa chất mạnh.
Lỗ bắt vòi nằm ở đâu?
Lỗ bắt vòi được thiết kế trên bàn, tiện lợi khi lắp đặt và thay thế.
Chậu có đi kèm phụ kiện lắp đặt không?
Không bao gồm sẵn phụ kiện, nhưng dễ kết hợp với nhiều mẫu vòi và ống thải trên thị trường.
Có phù hợp với các kiểu phòng tắm hiện đại không?
Rất phù hợp. Thiết kế đơn giản nhưng tinh tế, hài hòa với nhiều phong cách không gian khác nhau.
Lavabo TOTO LT764#XW là sản phẩm chất lượng, thẩm mỹ cao, dễ dàng lắp đặt và vệ sinh. Với thiết kế âm bàn gọn gàng, lớp men sứ chống bám bẩn và khả năng phối hợp linh hoạt với các phụ kiện, đây là lựa chọn hoàn hảo cho phòng tắm hiện đại, tiện nghi và bền lâu.

