Danh mục trống
| Loại | Vòi lavabo nóng lạnh |
| Loại lavabo tương thích | Lavabo 1 lỗ sử dụng vòi thấp |
| Chất liệu | Đồng mạ Crom - niken |
| Đóng/mở | Tay gật gù đơn |
| Chế độ | Nóng lạnh |
| Dây cấp | Bao gồm dây cấp nóng lạnh |
| Bộ xả | Ống xả thẳng (không bao gồm ống thải chữ P) |
| Phụ kiện kèm theo | Phụ kiện lắp đặt |
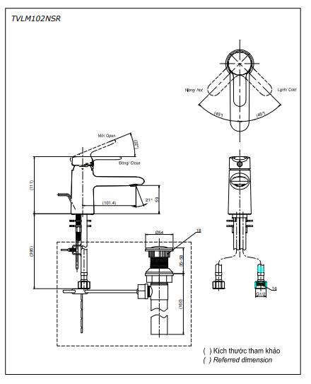
| Kích thước | Xem trong bản vẽ kỹ thuật |
| Bảo hành | Nhấp để xem chính sách bảo hành |
Vòi lavabo chậu rửa mặt nóng lạnh là thiết bị cấp nước đi kèm với chậu rửa lavabo, có khả năng pha trộn, điều chỉnh nhiệt độ nóng lạnh theo ý muốn của người sử dụng.
Sản phẩm đến từ thương hiệu thiết bị vệ sinh cao cấp TOTO Nhật Bản
Vòi lavabo, hay còn gọi là vòi chậu lavabo, hoặc vòi chậu rửa mặt là thiết bị cấp nước đi kèm với chậu rửa mặt lavabo. Vòi rửa mặt TOTO được ứng dụng công nghệ hiện đại:
Lớp mạ chống ăn mòn đảm bảo vòi lavabo nóng lạnh luôn sạch sẽ, tránh sự ăn mòn theo thời gian.
Công nghệ Tay gạt siêu êm (Comfort Glide) giúp dễ dàng sử dụng với bộ phận lõi bên trong được thiết kế dựa trên cách thao tác chuyển động của người dùng và bằng vật liệu siêu bền (như các bon kim cương) khiến tay gạt vòi nước nóng lạnh lavabo vẫn trơn tru sau nhiều năm; đồng thời giúp kiểm soát lượng nước chính xác, thuận tiện trong quá trình sử dụng.

Công nghệ tay gạt siêu êm, dễ dàng sử dụng vòi chậu lavabo nóng lạnh
Không chỉ đơn giản là dễ dàng trong chuyển động mà còn là tính dễ sử dụng kể cả hoạt động trong một khoảng thời gian dài mà vẫn sử dụng được thoải mái. Bởi lý do đó mà TOTO đã phát triển một van bên trong vòi chậu rửa mặt nóng lạnh dựa trên cảm ứng người dùng. Được gọi là công nghệ Comfort Slide.

Vòi nước nóng lạnh nhà tắm cho chậu rửa TLP03301A1
Sản phẩm vòi lavabo nóng lạnh cho chậu rửa mặt của thương hiệu TOTO có đa dạng về mẫu mã, khách hàng có thể lựa chọn qua các bộ sưu tập: Dòng Z Collections, Dòng G Collections, Dòng L Collections..

Vòi nước nóng lạnh lavabo với màu sắc đa phù hợp với mọi không gian thiết kế

